反支撐和轉換層,到底有什麽區别?千萬别搞錯了!
反支撐是什麽?轉換層又是什麽?
什麽情況下需要用到反支撐或者轉換層?
支撐層和轉換層是必須要做的嗎?
具體的施工工藝是什麽樣的呢?
回答人@小助手
其實這個問題之前我們也說過哦~完整文章可在官網的【圖文】專欄裏面(miàn)搜索《反支撐和轉換層,到底有什麽區别?》
01. 反支撐與轉換層的區别
反支撐和轉換層,到底有什麽區别?
我們先說相似點:
二者的作用都(dōu)是縮短吊杆長度保證吊頂安全和方便吊頂空間内設備管道(dào)的排布,對吊頂加固避免吊頂内外氣壓不均,引起(qǐ)“風吹吊頂動”的現象。

風吹吊頂動↑
二者不同點:
首先,結構不一樣(廢話)

△反支撐

△轉換層
其次使用範圍不一樣:
反支撐是在局部使用,轉換層通常是大面(miàn)積使用。
轉換層相比反支撐而言,安全性更好(hǎo),當然成(chéng)本也會更高。
02. 什麽時候需要用到反支撐/轉換層

驗收規範中,對什麽時候使用轉換層,有明文規定。
在驗收規範規定:
1、當吊頂吊筋長度大于1.5m且小于3.0m時,應按規範要求設置反向(xiàng)支撐。

2、當吊頂内部空間大于3.0m時,(或反支撐垂直長度>1500mm時)應該設置轉換層;

PS:當吊杆與設備相遇時應調整并增設吊杆,吊頂面(miàn)積較大時,吊頂設備排布複雜不建議使用反支撐。
03. 它們的标準做法有哪些?
反支撐做法有:主龍骨拉結法、吊杆通長拉結法、倒三角法。
轉換層做法有:鋼架轉換層、吊杆+鋼架轉換層。
1、反支撐做法
a、主龍骨拉結法

△主龍骨拉結法
主龍骨拉結法适用于吊杆長度超過1.5m且小于3m時。

具體做法:在CS60主龍骨橫撐底邊每隔主龍骨間距打孔,M8全牙吊杆穿過,位置确定後上下螺母固定。
CS60主龍骨斜撐每隔兩倍主龍骨間距相向(xiàng)設置;當吊杆長度超過1.5m且小于2m時,适當采用CS50主龍骨。
b、吊杆通長拉結法

△吊杆通長拉結法
吊杆通長拉結法是在吊杆長度超過1.5m且小于3m時适用。

做法要求:斜拉鋼筋每隔兩倍主龍骨間距設置。∅8橫向(xiàng)鋼筋、斜拉鋼筋及其與M8全牙吊杆焊接處必須做防鏽處理。∅8鋼筋可用M8全牙吊杆替代,但焊接處需做防鏽處理。
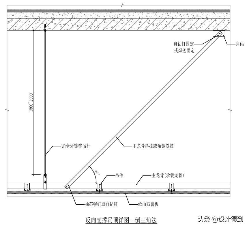
c、倒三角法

△倒三角法
倒三角法是在吊杆長度超過1.5m且小于2m時适用。安裝間距在2m以内,圍繞某一中心呈梅花形分布,且不應設置在同一直線上。

2、轉換層做法
a、鋼架轉換層

△角鋼轉換層
① 轉換層的吊杆采用角鋼、槽鋼等剛性構件,杆端與樓闆底面(miàn)可靠連接。

② 爲保障轉換層的穩定,應有斜向(xiàng)撐與混凝土梁側、牆側可靠連接,縱橫向(xiàng)均應設置。
無法與梁側、牆側連接時,應在吊杆間設置交叉拉杆,縱橫向(xiàng)均應設置。
b、吊杆+鋼架轉換層

根據前面(miàn)提到的内容可以知道(dào),反支撐/轉換層的做法就(jiù)是爲了讓吊杆的長度不大于1500mm,那麽轉換層的做法也可以做成(chéng):吊杆+角鋼+吊杆,這種做法相對全鋼架轉換層更節約成(chéng)本,實際應用中更靈活。


好(hǎo)啦,這就(jiù)是反支撐和轉換層的介紹了,怎麽樣,那你學會了嗎?
文章來源:今日頭條
原文鏈接:https://www.toutiao.com/article/7222589339782464059/?app=news_article×tamp=1688123569&use_new_style=1&req_id=202306301912497D36A128B9A48C7B9C77&group_id=7222589339782464059&wxshare_count=1&tt_from=weixin&utm_source=weixin&utm_medium=toutiao_android&utm_campaign=client_share&share_token=e6a22309-cddc-4fba-abf8-3a0f63f7795f&source=m_redirect
Copyright © 雲南正榮裝飾工程有限公司 版權所有 地址:雲南省昆明市盤龍區萬宏國際1号地塊A座1117号 備案号:
技術支持:貳壹網絡