您好(hǎo),歡迎光臨雲南正榮裝飾工程有限公司!
語言選擇: ∷ 

如何驗收門窗的設計質量?

發布時間:2023-03-28 浏覽次數:0

從以下三個方面(miàn)談一談門窗施工的全流程:

  • 門窗的性能(néng)标準

  • 門窗的施工工藝

  • 門窗的驗收标準

  • 窗邊漏水、滲水原因及處理方法



. 門窗的性能(néng)标準

選擇門窗時,門窗質量應該是首要考慮的因素。

GB/T 8478-2020 《鋁合金門窗》

5.1.2.1.1外門窗主要受力杆件所用主型材基材壁厚公稱尺寸應經設計計算和試驗确定。

5.1.2.1.2 門窗用主型材基材壁厚(附件功能(néng)槽口處的翅壁壁厚除外)公稱尺寸除應滿足5.1.2.1.1要求外,尚應符合下列規定:

  • a.外門不應小于 2.2 mm,内門不應小于 2.0 mm

  • b.外窗不應小于1.8 mm,内窗不應小于1.4 mm

門窗的抗風壓性能(néng)、氣密性能(néng)、水密性能(néng)、保溫性能(néng)、隔聲性能(néng)這5個性能(néng)需要大家格外注意,這是保證門窗質量的重要因素。

1.抗風壓性能(néng)

抗風壓是指關閉著(zhe)的外(門)窗在風壓作用下,不易發生損壞(如:開裂、型材破損、玻璃破碎、粘連失效等)和五金件松動、開啓困難功能(néng)障礙的能(néng)力。

抗風壓性能(néng)一共分爲9個級别,級别越高性能(néng)越強

值得注意的是,抗風壓性能(néng)等級并不等同于台風等級。一般進口系統門窗可以達到最高級。

GB/T 8478-2020 《鋁合金門窗》


2.水密性能(néng)

水密性是門窗在正常關閉狀态下,刮風下雨時阻止雨水滲透的能(néng)力。

GB/T 8478-2020 《鋁合金門窗》


3.氣密性能(néng)

氣密性就(jiù)是外門窗在正常關閉的狀态下,阻止空氣滲透的能(néng)力,一共分8個級别,同樣的進口系統門窗可以達到最高級。

GB/T 8478-2020 《鋁合金門窗》


4.隔聲性能(néng)

隔聲性能(néng)又叫(jiào)隔音降噪性,是指減弱聲源到聽者之間聲音傳播的能(néng)力,這個也是大家比較關注的。一般爲提高卧室窗的隔音性,可以通過增加中空玻璃的夾膠配置來實現。

PS:系統門窗是針對不同地域氣候環境和使用功能(néng)要求所研發的門窗系統,會按照嚴格的程序進行設計、制造和安裝,具備高可靠性、高性價比的建築門窗。

GB/T 8478-2020 《鋁合金門窗》


5.保溫性能(néng)

保溫性能(néng)用門窗專業術語說就(jiù)是K值,系統門窗不低于3級标準,進口系統門窗可以達到最高級别,達到被(bèi)動房隔熱保溫值的系統門窗k值可以達到0.8及以下。

GB/T 8478-2020 《鋁合金門窗》



GB/T 8478-2020 《鋁合金門窗》

. 門窗的施工工藝


主流的門窗的安裝工藝有3種:

  • 精洞口法安裝

  • 預留洞口法安裝

  • 襯套法安裝


1.精洞口法安裝

安裝步驟:

  • a.先將(jiāng)洞口全部制作粉刷完畢,預留有一個裝飾好(hǎo)的洞口;

  • b.將(jiāng)比洞口略小的門窗裝入其中,通過在門窗框内打安裝固定孔,用專用的固定螺絲將(jiāng)門窗與牆體固定

  • c.門窗裝入洞口後用聚氨酯發泡劑及密封膠進行密封(Ps:無需後期的水泥嵌縫及牆面(miàn)粉刷)

精洞口安裝因爲不需要進行後道(dào)抹灰、粉刷工序,不會對成(chéng)品門窗造成(chéng)污染,也就(jiù)避免了框扇的損壞,因此對門窗的保護較好(hǎo)。

2.預留洞口法安裝

又稱“濕法安裝”,通俗一點,叫(jiào)“先框法”。

安裝步驟:

a.在洞口裝飾面(miàn)層施工前先安裝門窗

b.采用連接件在洞口上固定好(hǎo)鋁門窗框

c.對鋁合金門窗框和洞口間隙的密封處理

PS:安裝作業方法必須對已經安裝好(hǎo)的門窗框進行很好(hǎo)的保護,以免水泥砂漿滴落在已安裝好(hǎo)的門窗框上而污染門窗。

3.襯套法安裝

又稱“幹法安裝”,是在牆體安裝洞口上預先安置金屬附加框并進行防水密封處理,待牆體洞口表面(miàn)裝飾濕作業全部完成(chéng)後,在附加框上固定鋁合金門窗的安裝方式,叫(jiào)“後框法”


幹法安裝與精洞口法安裝非常相似,可以說幹法安裝中的襯套附框是對安裝洞口尺寸的校正

但不管采用何種方法進行鋁合金門窗的安裝,都(dōu)要進行事(shì)前準備、安裝施工、收尾清潔等大部分工作。

三. 門窗驗收标準

門窗驗收主要有6個方面(miàn):核對報告證書、隐蔽工程驗收、安裝質量驗收、五金驗收、玻璃驗收、成(chéng)品質量驗收

1.核對報告證書

報告證書一般包括門窗出廠合格證書、門窗安裝施工自檢合格記錄、門窗施工圖、設計說明及其他設計文件、隐蔽工程驗收記錄、産品合格證書(型材、玻璃、密封材料、五金)、門窗性能(néng)檢測報告、進場驗收記錄、複驗報告等

2.隐蔽工程驗收

  • a.安裝的緊固件(連接片、膨脹釘、門窗安裝螺絲等)距框端部距離≤150mm,中間間距≤500mm,并且無虛打、漏打、松動等現象。

  • b.打發泡的标準:發泡需連續、無漏打或孔洞現象





△發泡不密實,有空洞;固定片處沒有打到發泡劑

3.安裝質量驗收

  • a.檢查窗框顔色均勻準确

  • b.窗框四個角的進出線距離一緻,誤差不超過2mm;

  • c.拼樘門窗頂部或底部高度差≤2mm,拼樘處打螺釘連接,螺釘間距≤300mm

  • d.工藝孔蓋、膨脹釘蓋、排水孔蓋無缺少;

  • e.檢查開啓扇處是否有排水孔/排水槽;


4.五金驗收

  • a.門窗扇啓閉靈活,無卡滞停頓現象;

  • b.對開門窗左右兩側合頁高度對稱一緻;

  • c.五金件螺絲無少打、漏打情況;

  • d.門窗扇的開啓方向(xiàng)及開啓角度與設計方案相符。

5.玻璃驗收

  • a.檢查玻璃正反面(miàn)是否裝反;

  • b.中空玻璃内部是否有霧,夾膠玻璃中間是否有雜質顆粒;

  • c.玻璃外表面(miàn)有無明顯劃傷現象;

  • d.玻璃顔色與合同要求的一緻。

6.成(chéng)品質量驗收

  • a.型材、木材表面(miàn)無有明顯劃傷、磕碰傷;

  • b.門窗扇、框四個接縫處無見光、透亮現象;

  • c.門窗密封膠條無缺失、短,密封膠條接縫處縫隙不大;

  • d.門窗扇四周搭接均勻,誤差≤2mm

  • e.玻璃膠連續光滑。

四. 斷橋窗窗邊漏水、滲水原因及處理方法


一般裝修安裝窗台石材闆或者窗戶包套時,可能(néng)會把窗戶周圍的密封膠鏟除,引發滲漏。甚至有些把窗台抹灰砸掉,施工震動導緻窗框邊砂漿層開裂、脫落,破壞原有防水措施,從而引發滲漏。


1.窗戶排水不暢導緻漏水


有些窗戶沒有排水孔,尤其是推拉式窗戶。如果雨水積聚在滑架内無法排出,積水很容易滲入室内。或者在外牆的窗邊貼瓷磚時堵住了排水管,使推拉框内的雨水滲入内牆。時間長了下水道(dào)會被(bèi)贓物堵住,造成(chéng)水流不暢。


解決方法:重新修複排水通道(dào)。針對窗框排水口的堵塞問題,需要保持排水口通暢才能(néng)解決這個問題。如果排水管的位置有問題,則需要重新打開孔。

門窗排水工藝示意

2.窗戶密封條老化造成(chéng)漏水

常見的是密封條或打膠老化、開裂,直接導緻窗戶密封性能(néng)變差,産生漏風。

解決辦法:檢修打膠和密封條

質保期内可以找維保單位,超出質保期可以自己檢查窗戶所有打膠位置和密封條,如果有開裂的情況,及時打膠或更換密封條。

3.窗口松動,窗口上緣漏水


由于窗戶和框架之間松動而導緻的漏水很常見。一方面(miàn),當門關閉時,窗戶會産生共鳴和振動。随著(zhe)時間的推移,窗戶和牆壁之間的差距越來越大。另一方面(miàn),質量差的窗戶強度不夠,後期使用容易變形。使用一段時間後,窗框和上邊緣區域的砂漿層會開裂脫落。這會導緻洩漏。

處理方法:重新做接縫處理。檢查窗戶與牆壁之間的接縫,清除老化和損壞區域的密封材料,重新清潔基礎,使其水平。如果窗戶和牆壁之間有很大的間隙,請用門窗框防水填縫劑填充。内、外窗框和窗邊需要用灌漿填充,以有效防止滲漏和防水。

4.窗戶四周牆體防水層破損,造成(chéng)窗戶上緣漏水


這個問題在老房子中很常見,窗戶周圍牆壁的防水層損壞,容易漏水。另外,舊房在裝修、換窗時,不合理的拆窗也會對防水層造成(chéng)損壞。如果不及時修複損壞的防水層,重新安裝窗戶後可能(néng)會出現漏水現象。

處理方法:重新制作窗牆防水層。對于滲漏嚴重的牆體,需要重新施工防水層,尤其是牆體與地面(miàn)、牆體與天花闆的連接處、牆體擋闆等。有防水的需求,雨水需要擋在牆外。

門窗水密性能(néng)構造設計應符合下列要求:

在外門、外窗的框、扇下橫邊應設置排水孔,并應根據等壓原理設置氣壓平衡孔槽;排水孔的位置、數量及開口尺寸應滿足排水要求;排水孔宜加蓋排水孔帽;拼樘料與窗框連接處應采取有效可靠的防水密封措施;門窗框與洞口牆體安裝間隙應有防水密封措施;在帶外牆外保溫層的洞口安裝門窗時,宜安裝室外披水窗台闆,且窗台闆的邊緣與外牆間應妥善收口;外牆窗楣應做滴水線或滴水槽,外窗台流水坡度不應小于2%。

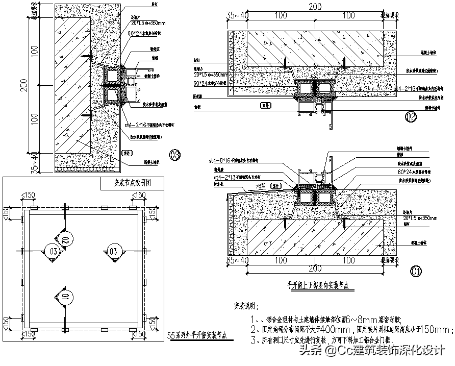
門窗安裝技術要求:

門窗需拼樘料連接時,需要先在窗外沿腳與拼樘料腳部抹密封膠後再拼接,以确保拼接處的水密性、氣密性。

門窗通過熱鍍鋅冷軋鋼闆與結構連接,鍍鋅膜厚≥12um(重慶區域鍍鋅膜厚≥8um)。冷軋鋼闆厚度不小于1.5mm,寬度25mm,鍍鋅鐵片中間的間距@≤500mm,距角部、中挺距離≤150mm,固定片中心距離牆體邊緣不小于50mm。固定采用塑料膠膨脹(砌體)或射釘(混凝土)配合固定,并嚴禁固定在磚縫以及空心磚上,單邊連接件不少于2個。拉片固定後,窗框的四周用發泡劑填塞,距地200mm用防水砂漿填塞,防止出現空隙而造成(chéng)雨水滲透現象。

窗牆連接節點圖

鋁合金門窗防雷圖

鋁合金門窗防水

1.窗與門上端檐口位置設有凹槽滴水線,下端設有排水坡度

2.開啓扇與固定邊框,在寬度1/4左右兩邊開長形排水孔

3.窗邊框與主體塞縫

  • a.門窗框安裝前,應將(jiāng)洞口周邊的雜物灰塵清理幹淨,洞口應澆水濕潤并刷摻膠水的水泥有利于窗框安裝後塞防水砂漿與窗邊牆體的緊密結合。

  • b.使用1:2幹硬性水泥砂漿,加5%防水粉和占水泥重量0.2%的杜拉纖維,防水粉與杜拉纖維的加入可使塞縫砂漿凝固後不容易開裂,更好(hǎo)的提高防水性能(néng)。

  • c.框槽,接縫整體塞縫的方法,爲确保塞縫的密實性,鋁合金門窗,安裝上牆之前先將(jiāng)框槽用防水砂漿充填密實待凝固後再上牆安裝,安裝之後再用同标号同配比的防水砂漿填塞門窗框與牆體之間的縫隙,待砂漿達到一定強度後,應將(jiāng)臨時固定用的木楔,墊塊取出,用相同的水泥砂漿補平,塞縫砂漿達到初凝後應用噴水壺澆水養護,塞縫後檢查其質量不得有開裂,空鼓的情況

  • d.門窗框塞縫後室外側必須密實平整,經檢查塞縫砂漿實際平整并達到養護要求後外側從鋁合金框起(qǐ)塗防水塗膜,待塗防水塗膜固化後,需抽查做淋水試驗,無滲漏現象後,才能(néng)進行外牆裝飾面(miàn)施工

  • e.外牆裝飾面(miàn)比鋁合金邊框底口高5毫米,并且外牆面(miàn)與鋁合金邊框的接觸部位留有5毫米槽口,用來注密封膠

文章來源:今日頭條
原文鏈接:https://www.toutiao.com/article/

本站轉載或引用文章若涉及版權問題請與我們聯系,我們立即將(jiāng)其删除!

雲南正榮裝飾工程有限公司微信掃碼 關注我們

  • 24小時咨詢熱線0871-63365070

  • 移動電話15987198787

Copyright © 雲南正榮裝飾工程有限公司 版權所有 地址:雲南省昆明市盤龍區萬宏國際1号地塊A座1117号 備案号: 

技術支持:貳壹網絡